28
$749,000 Sale
Listed 49 days ago
62 GEORGE STREET E
· 5
· 2.0
· 8
· 2000 - 2500
Key Facts
Key facts for 62 GEORGE STREET E
Property Type
House, House
Parking
Garage: Yes, 8 parking
MLS #
S12353198
Size
2000 - 2500 sqft
Basement
Partially finished, Full (Partially finished)
Listed on
-
Lot size
-
Tax
-
Days on Market
-
Year Built
-
Maintenance Fee
-
Description
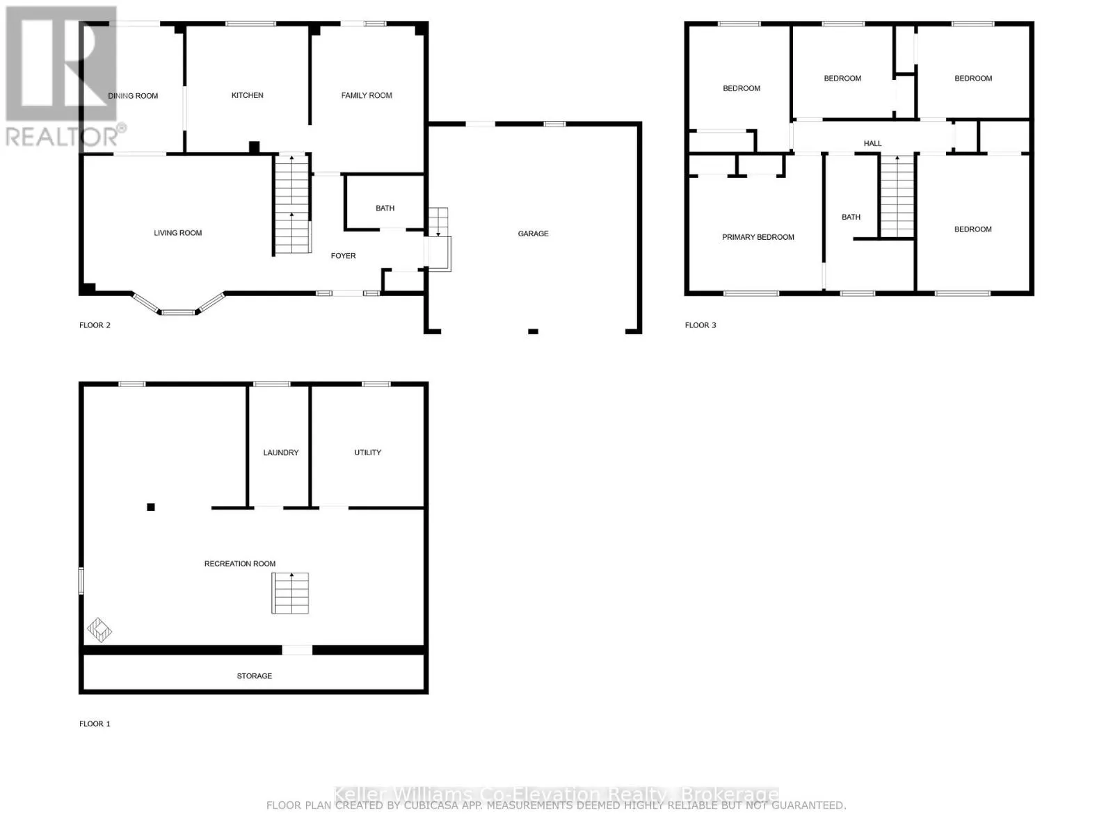
Welcome to your Forever Home! Located in the heart of the charming Village of Creemore. This property boasts stunning views and offers a perfect blend of tranquility and convenience. Set on a private oversized lot surrounded by mature gardens and trees, this well maintained home blends timeless cha...rm with modern updates. With approx. 2800+ sq ft of finished living space, 5 bedrooms, and 2 full bathrooms, this is a rare opportunity to own a turnkey property with room for the whole family to grow. With its lovely landscaping that exudes curb appeal this property offers the perfect blend of character and modern function. Maple hardwood floors on the main level of the home add additional warmth and elegance to the living spaces. There are several perennial gardens on the property with mature trees adding shade and privacy. Two walkouts for accessing an oversized deck, perfect for entertaining, enjoying a morning coffee, or simply soaking in the peaceful and private natural surroundings. There are two garden sheds available for additional storage and gardening tools. The property has undergone significant upgrades including a re-shingled roof, central air conditioning system and furnace. It is also equipped with a new Generac generator, a new high-efficiency hot water heater and a new water conditioner. This home is an absolute dream for large families or for people who love to entertain. Just steps from Creemore's shops, cafes, a thriving farmers market and small-town charm. (id:10452)
Similar Properties (No results)
Room Types
Bedroom 2
-
Dimensions 4.23 m x 3.5 m
159.36 sqft
Bedroom 3
-
Dimensions 2.87 m x 3.49 m
107.81 sqft
Cold room
-
Dimensions 1.08 m x 10.62 m
123.46 sqft
Listing courtesy of: Keller Williams Co-Elevation Realty, Brokerage
This REALTOR.ca listing content is owned and licensed by REALTOR® members of The Canadian Real Estate Association.